- Ti trovi in:
- Home ›
- Immobili ›
- Campobasso ›
- Vendita ›
- Appartamento ›
- Appartamento in vendita a Campobasso
Appartamento in vendita a Campobasso - Semicentro, 6
Vendita
Cod. P482
€ 108.000
Descrizione
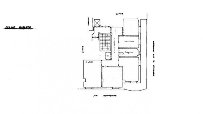
Nella servitissima Via Pisa, disponiamo la Vendita esclusiva di un grande Appartamento ubicato al quarto piano servito da ascensore, composto da ingresso, cucina abitabile, tre camere da letto, studio, ripostiglio e bagno con vasca e doccia. L'Appartamento gode di tanta luce grazie ad un'ampia balconata angolare e dispone, inoltre, di una cantina. L'Appartamento è dotato di infissi vetrocamera nuovi a taglio termico con apertura vasistas.
Ape: E
Rif. P482
Caratteristiche
Scopri le caratteristiche di questo immobile
Codice: P482
Contratto: Vendita
Categoria: Appartamento
CAP: 86100
Comune: Campobasso
Zona: Semicentro
Totale mq: 145 mq
Camere: 4
Bagni: 1
Locali: 5
Stato conservazione: Buono
Piano: 4
Piani totali: 5
Riscaldamento: Centralizzato con contabilizzatore di calore
Ascensore: Si
Stato attuale: Libero al rogito
Spese condominio: € 98
Balconi: Presente
Cucina: Abitabile
Posizione: Semicentrale
Ubicazione immobile

P.IVA: 01718190703
info@centroaffariimmobiliare.com
0874414101
Contattaci
Alcuni immobili che potrebbero interessarti
in Vendita
€ 65.000
Appartamento in vendita a Campobasso
Campobasso
Semicentro
Semicentro
Cod. P372
Dettagli
in Vendita
€ 85.000
Appartamento in vendita a Campobasso
Campobasso
Semicentro
Semicentro
Cod. M130bis
Dettagli
in Vendita
Tratt. riservata
Appartamento in vendita a Campobasso
Campobasso
Centro
Centro
Cod. P69
Dettagli
Ultimo aggiornamento 12/12/2025